Casa indipendente in vendita

Vietri Sul Mare, Via case sparse - Albori
€ 550.000
4 locali 4 locali
1 Mq 1 Mq
1 bagno 1 bagno

Casa indipendente in vendita

Vietri Sul Mare, Via case sparse - Albori

Descrizione annuncio

Iaconti - Immersa in uno scenario senza tempo, dove la natura e la storia si fondono in un equilibrio perfetto, sorge un’antica tenuta di ampia metratura e su più livelli , dal fascino autentico, affacciata sullo spettacolare Golfo di Salerno e abbracciata dalla bellezza senza eguali di Vietri sul Mare e dall’eleganza storica di Cava de’ proprietà unica si estende su un terreno rigoglioso di circa 20.000 mq, un vero angolo di paradiso dove la terra racconta storie di tradizione e abbondanza. Tra i dolci declivi si snodano oltre 150 piante di ulivo, custodi di sapori antichi, mentre l’aria è pervasa dal profumo intenso degli agrumeti di Sfusato Amalfitano. Il paesaggio si accende poi dei colori vivi dei melograni e della presenza maestosa di folti castagneti, creando un’atmosfera suggestiva in ogni stagione da ristrutturare, rappresenta una straordinaria opportunità per chi desidera plasmare ogni ambiente secondo il proprio gusto personale, dando vita a una residenza unica e su misura. Gli spazi si prestano a una reinterpretazione elegante e contemporanea, nel rispetto del carattere autentico della la proprietà ampie terrazze panoramiche vista mare, perfette per godere di tramonti mozzafiato sul Golfo di Salerno, vivere momenti di relax o accogliere ospiti in un contesto di assoluta al comodo accesso carrabile, la tenuta si presta perfettamente sia come esclusiva dimora d’élite, ideale per chi desidera vivere immerso nella quiete senza rinunciare alla vicinanza ai centri più rinomati della Costiera, sia come location d’eccellenza per un’attività ricettiva di charme, capace di offrire agli ospiti un’esperienza autentica e luogo raro, dove ogni dettaglio parla di bellezza, tradizione e possibilità. Una proprietà che non è solo uno spazio da abitare, ma un’esperienza da vivere.

Mostra tutto

Nelle vicinanze

Trasporto pubblico Trasporto pubblico
Cava dei Tirreni
Cava dei Tirreni
2,1 Km
Trasporto pubblico
690 m
Capolinea Viale Crispi
Capolinea Viale Crispi
1,8 Km
Vietri sul Mare - Amalfi
Vietri sul Mare - Amalfi
1,9 Km
Ricariche auto elettriche Ricariche auto elettriche
Cava de' Tirreni Marconi | EnelX
2,4 Km
Scuole Scuole
Istituto d'Istruzione Superiore "Gaetano Filangieri"
1,4 Km
Scuole
1,7 Km
Scuola Media Statale "Giovanni XXIII"
1,7 Km
Liceo Classico Statale "Marco Galdi"
1,8 Km
Istituto Comprensivo "Trezza"
1,9 Km
Farmacia Farmacia
Farmacia
1,3 Km
Parafarmacia Dott.ssa Bisogno
1,7 Km
Farmacia Bifolco
2,1 Km
Farmacia del Corso
2,3 Km
Farmacia del Leone
2,4 Km
Ospedali Ospedali
Presidio Ospedaliero Santa Maria dell'Olmo
1,1 Km
Supermercati Supermercati
Supermercati
1,7 Km
Conad City
1,7 Km
MD Discount
2,3 Km
Conad
2,5 Km
Negozi Negozi
Negozi
1,4 Km
Mille Idee
1,6 Km
L'Angolo del Gusto
1,6 Km
Il Pizzicagnolo
1,7 Km
Boulangerie Due
1,9 Km
Bar Bar
Yourself
1,3 Km
Bar
1,5 Km
Lab 11
1,5 Km
Fresconi - Lato B
1,5 Km
L'Angelo
1,5 Km
Ristoranti Ristoranti
La Foce 2
510 m
Ristorante La Fattoria
590 m
Antico Mulino
1,2 Km
Ristorante Piccolo Paradiso
1,5 Km
Lab 13
1,5 Km
Mostra tutto

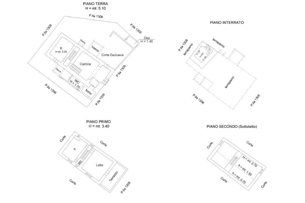
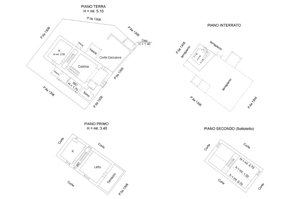
Caratteristiche

Rif.:
60973631
Piano:
2 di 3
Terrazzi:
2
Camere da letto:
2
Arredamento:
Assente
Condizionamento:
Assente
Mostra tutto
Prezzo Prezzo
€ 550.000
Rata mutuo Rata mutuo
€ 2.600 / mese
Spese annue Spese annue
€ 0
Proponi il tuo prezzoProponi il tuo prezzo

Classe Energetica

G
G
G
G
G
G
G
G
G
EP globale non rinnovabile:
338.81 kW h/m² anno
EP globale rinnovabile:
12.25 kW h/m² anno
EP invernale del fabbricato:
EP estiva del fabbricato:
Anno di costruzione:
1900
Riscaldamento:
Assente

Ti interessa visionare l'immobile?

Fissa un appuntamento  Fissa un appuntamento

Richiedi informazioni

Clicca su Leggi per aprire l'informativa
* Questi campi sono obbligatori

Calcola il tuo mutuo

Semplice e senza impegno
Anticipo

( % )
Mutuo

( % )

pochi semplici passi

inserisci i tuoi dati
Questionario completato
Grazie per aver richiesto un appuntamento senza impegno con un nostro Consulente del Credito e Assicurativo.

Hai inserito correttamente tutti i dati necessari e a breve riceverai una e-mail con un link da convalidare per inviare i tuoi dati.
Affiliato
Vietri Immobiliare Srl
Corso Umberto I, 37 84019 Vietri Sul Mare (SA)

Il nostro staff


  • Irene Avallone
    Coordinatrice

  • Luca Peruzzini
    Affiliato

  • Giovanni Apicella
    Collaboratore

  • Andrea Avallone
    Collaboratore

  • Gianluca Adinolfi
    Responsabile
Corso Umberto I, 37 84019 Vietri Sul Mare (SA)
Zona: Vietri Sul Mare-Cetara-Maiori
Mostra su mappa
Orari: dal lunedì a sabato 9:00-13:00/16:00-20:30; Aperti anche la domenica mattina.
Affiliato
Vietri Immobiliare Srl
Corso Umberto I, 37 84019 Vietri Sul Mare (SA)

2026 Tecnocasa Franchising S.p.A. - P. IVA 08365160152 - Via Monte Bianco 60/A 20089 Rozzano (MI). Ogni agenzia ha un proprio titolare ed è autonoma. Privacy policy | Policy utilizzo | Cookie policy