 
			 
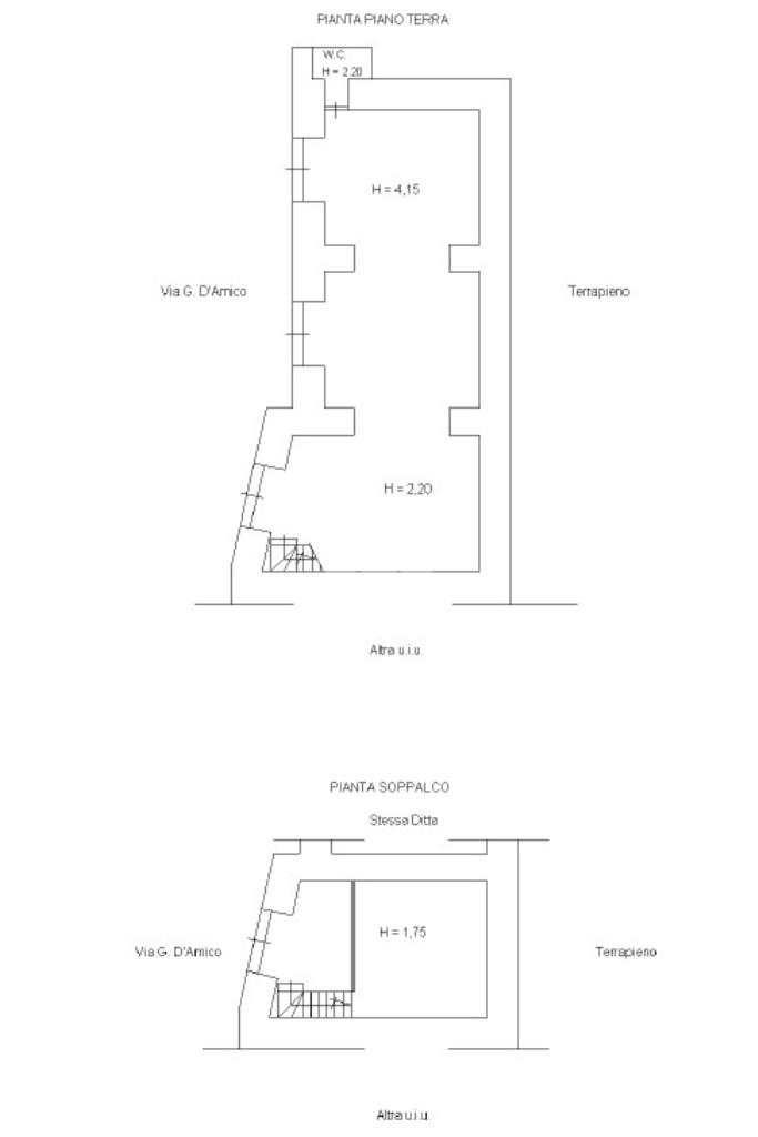
				Proponiamo in vendita un interessante locale commerciale a bordo strada, situato in una zona strategica ad alto flusso veicolare, ideale per garantire ottima visibilità e facile accesso alla si sviluppa su una superficie complessiva distribuita in due ambienti principali, con una altezza interna di 3,92 metri, che dona ampiezza e luminosità agli spazi. Il locale è dotato di tre ampie aperture su strada, perfette per vetrine espositive o ingressi indipendenti, che ne valorizzano la fruibilità sia commerciale che logistica.
Completano la struttura:
Un locale WC ,Un soppalco praticabile in buono stato, attualmente adibito ad ufficio, ideale come area amministrativa o zona operativa è stato precedentemente adibito a torrefazione, ma si presta con estrema versatilità a molteplici attività commerciali, artigianali o di servizio: laboratorio, showroom, studio professionale, take away, piccola ristorazione, rivendita alimentare, o altro ancora.Grazie alla buona distribuzione degli spazi, allo stato manutentivo più che buono e alla posizione di grande passaggio, questa soluzione rappresenta un'opportunità concreta per chi desidera investire o avviare un'attività in un contesto urbano dinamico e ben collegato.Ti interessa visionare l'immobile?