6 locali in vendita

Vietri Sul Mare, Via de marinis - Molina
€ 230.000
2 locali 2 locali
100 Mq 100 Mq
1 bagno 1 bagno

6 locali in vendita

Vietri Sul Mare, Via de marinis - Molina

Descrizione annuncio

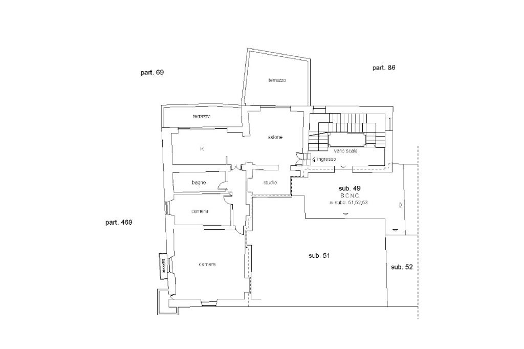
MOLINA di Vietri Sul Mare Via De Marinis OCCUPATA CON RENDITA DI 650 EURO MENSILI (SCADENZA CONTRATTO: 30/09/2026) RISTRUTTURATA – TERRAZZO – POSTO AUTO – 100 mq

Situata all'interno di un maestoso palazzo storico, questa dimora è un raro connubio tra fascino d’epoca e comfort moderno. Varcando la soglia, si viene avvolti da un’atmosfera unica fatta di archi monumentali, affreschi sapientemente conservati e marmi pregiati che riflettono la luce naturale in ogni angolo della casa.

Il cuore dell’appartamento è lo scenografico living doppio, dove il calore di un soggiorno con camino dialoga con una cucina abitabile spaziosa. La particolarità che rende questa casa straordinaria sono le due ampie vetrate che aprono la zona giorno su due meravigliosi terrazzi a livello, creando un’estensione naturale degli spazi interni verso l’esterno.

Attraverso un comodo corridoio si accede alla zona notte, che ospita un intimo studiolo, una cameretta e un bagno d'autore rivestito con autentiche maioliche vietresi. La camera matrimoniale è monumentale, servita da due balconi e così generosa nelle dimensioni da offrire la facile possibilità di ricavare una terza camera.

Completamente immersa nella luce e di facile accesso, questa proprietà vanta un plus introvabile per il contesto storico: un POSTO AUTO riservato all'interno del cancello privato. Una soluzione di prestigio, ideale sia come investimento ad alta resa che come futura residenza principale.

Mostra tutto

Nelle vicinanze

Trasporto pubblico Trasporto pubblico
Cava dei Tirreni
Cava dei Tirreni
1,2 Km
Trasporto pubblico
10 m
Capolinea Viale Crispi
Capolinea Viale Crispi
990 m
Vietri sul Mare - Amalfi
Vietri sul Mare - Amalfi
2,5 Km
Ricariche auto elettriche Ricariche auto elettriche
Cava de' Tirreni Marconi | EnelX
1,6 Km
Scuole Scuole
Istituto d'Istruzione Superiore "Gaetano Filangieri"
530 m
Istituto Comprensivo "Trezza"
950 m
Scuole
1,0 Km
Scuola Media Statale "Giovanni XXIII"
1,0 Km
Liceo Classico Statale "Marco Galdi"
1,1 Km
Farmacia Farmacia
Farmacia
420 m
Parafarmacia Dott.ssa Bisogno
780 m
Farmacia Bifolco
1,2 Km
Farmacia del Corso
1,4 Km
Farmacia del Leone
1,6 Km
Ospedali Ospedali
Presidio Ospedaliero Santa Maria dell'Olmo
200 m
Supermercati Supermercati
Conad City
810 m
Supermercati
870 m
MD Discount
1,4 Km
Conad
1,6 Km
Dico
2,4 Km
Negozi Negozi
Negozi
440 m
Mille Idee
690 m
L'Angolo del Gusto
700 m
Il Pizzicagnolo
770 m
Boulangerie Due
1,1 Km
Bar Bar
Yourself
390 m
Lab 11
600 m
Bar
610 m
Fresconi - Lato B
610 m
Alex Bar
630 m
Ristoranti Ristoranti
La Foce 2
530 m
Lab 13
600 m
Ristoranti
870 m
Ristorante Piccolo Paradiso
1,5 Km
Ristorante La Fattoria
1,5 Km
Mostra tutto

Caratteristiche

Rif.:
61182888
Piano:
1 (Piano medio)
Posti auto:
1
Balconi:
4
Terrazzi:
2
Camere da letto:
2
Mostra tutto
Prezzo Prezzo
€ 230.000
Rata mutuo Rata mutuo
€ 1.074 / mese
Spese annue Spese annue
€ 10
Proponi il tuo prezzoProponi il tuo prezzo

Classe Energetica

G
G
G
G
G
G
G
G
G
Anno di costruzione:
1967
Riscaldamento:
Autonomo
Tipo impianto:
A radiatori
Tipo alimentazione:
GPL

Ti interessa visionare l'immobile?

Fissa un appuntamento  Fissa un appuntamento

Richiedi informazioni

Clicca su Leggi per aprire l'informativa
* Questi campi sono obbligatori

Calcola il tuo mutuo

Semplice e senza impegno
Anticipo

( % )
Mutuo

( % )

pochi semplici passi

inserisci i tuoi dati
Questionario completato
Grazie per aver richiesto un appuntamento senza impegno con un nostro Consulente del Credito e Assicurativo.

Hai inserito correttamente tutti i dati necessari e a breve riceverai una e-mail con un link da convalidare per inviare i tuoi dati.
Affiliato
Vietri Immobiliare Srl
Corso Umberto I, 37 84019 Vietri Sul Mare (SA)

Il nostro staff


  • Irene Avallone
    Coordinatrice

  • Luca Peruzzini
    Affiliato

  • Giovanni Apicella
    Collaboratore

  • Andrea Avallone
    Collaboratore

  • Gianluca Adinolfi
    Responsabile
Corso Umberto I, 37 84019 Vietri Sul Mare (SA)
Zona: Vietri Sul Mare-Cetara-Maiori
Mostra su mappa
Orari: dal lunedì a sabato 9:00-13:00/16:00-20:30; Aperti anche la domenica mattina.
Affiliato
Vietri Immobiliare Srl
Corso Umberto I, 37 84019 Vietri Sul Mare (SA)

2026 Tecnocasa Franchising S.p.A. - P. IVA 08365160152 - Via Monte Bianco 60/A 20089 Rozzano (MI). Ogni agenzia ha un proprio titolare ed è autonoma. Privacy policy | Policy utilizzo | Cookie policy