Quadrilocale in vendita

Vietri Sul Mare, Via de marinis orientale - Molina
€ 160.000
3 locali 3 locali
100 Mq 100 Mq
1 bagno 1 bagno

Quadrilocale in vendita

Vietri Sul Mare, Via de marinis orientale - Molina

Descrizione annuncio

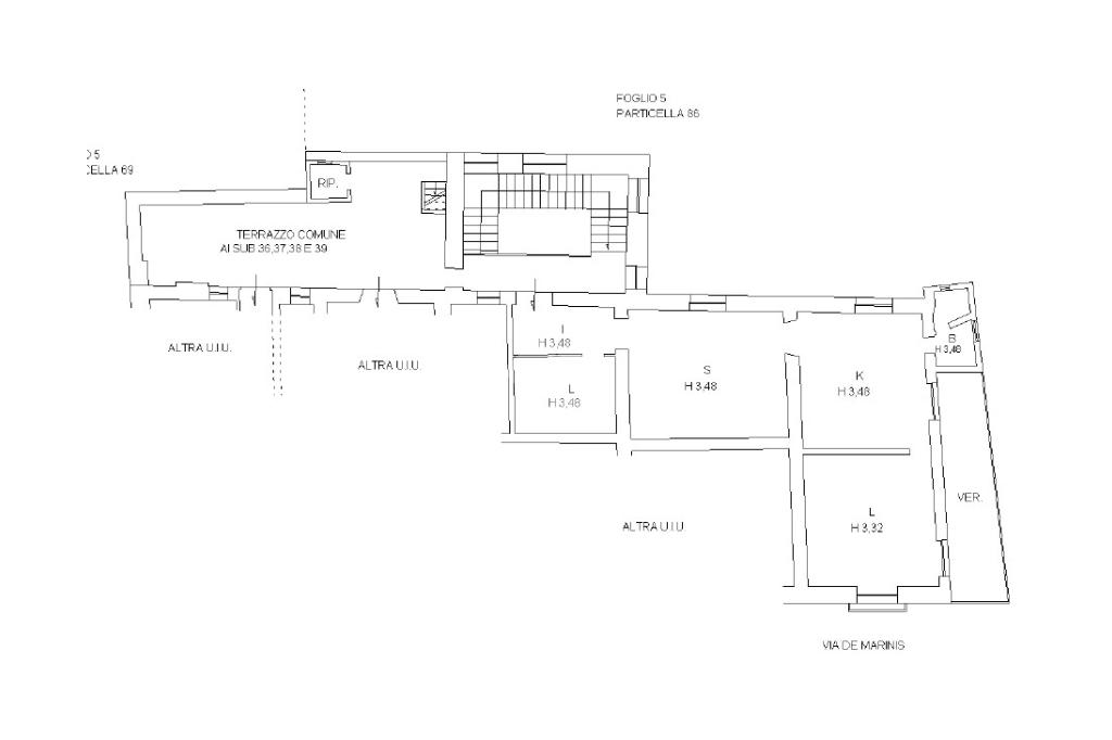
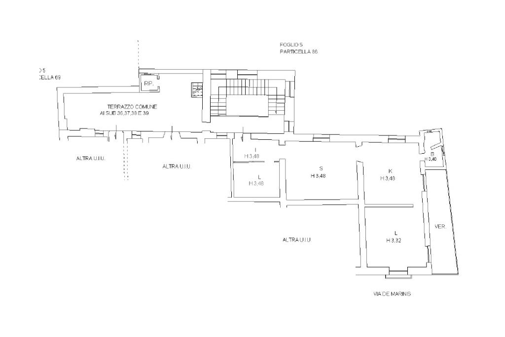
Molina di Vietri sul Mare,DA RISTRUTTURARE lungo la Strada Nazionale, è in vendita un appartamento che conserva tutto il fascino del passato, inserito in un palazzo storico impreziosito da un portone d’ingresso ampio e maestoso, capace di trasmettere fin da subito un senso di eleganza e solidità.

La casa si trova al secondo piano e accoglie con un ingresso che conduce a un soggiorno ampio e luminoso, ideale come spazio di convivialità e relax. La cucina, ben separata, si apre su un terrazzino che regala uno sfogo esterno piacevole e funzionale alla vita quotidiana. La camera matrimoniale è particolarmente ariosa e gode di un duplice balcone, uno con affaccio sul terrazzo e l’altro sulla strada, offrendo luce e ventilazione naturale durante tutta la giornata , una cameretta e wc . Completano UN POSTO AUTO TERRAZZO e PORZIONE DI SOTTOTETTO, che arricchiscono ulteriormente la vivibilità dell’appartamento.

Grazie alla sua posizione strategica, al contesto storico e alla distribuzione degli spazi, l’immobile rappresenta una soluzione ideale sia come abitazione principale sia come investimento, perfetto per chi desidera vivere o investire in una delle zone più caratteristiche di Vietri sul Mare.

Mostra tutto

Nelle vicinanze

Trasporto pubblico Trasporto pubblico
Trasporto pubblico
50 m
Trasporto pubblico
820 m
Stazione Marittima - Molo Manfredi
1,7 Km
Vietri sul Mare - Amalfi
Vietri sul Mare - Amalfi
460 m
Duomo-Via Vernieri
Duomo-Via Vernieri
2,8 Km
Farmacia Farmacia
Farmacia
300 m
Verdi
2,0 Km
Aiello
2,6 Km
Farmacia del leone
2,7 Km
Supermercati Supermercati
Pam
2,7 Km
Conad City
2,7 Km
Negozi Negozi
Negozi
260 m
Il Vecchio Formo "Apicella"
260 m
Alimentari da Imma
290 m
Pasticceria Sandra
300 m
Polleria Nello
300 m
Bar Bar
Bar
390 m
Zerottonove
2,3 Km
Embarcadero
2,5 Km
Pub Oro Eincenso E Birra
2,5 Km
Le Café
2,6 Km
Ristoranti Ristoranti
Ristoranti
120 m
Bordo
210 m
il Principe e la Civetta
210 m
Prattoria
220 m
da Raffaele
230 m
Mostra tutto

Caratteristiche

Rif.:
61178441
Totale piani:
2
Posti auto:
1
Balconi:
2
Terrazzi:
1
Camere da letto:
2
Mostra tutto
Prezzo Prezzo
€ 160.000
Rata mutuo Rata mutuo
€ 747 / mese
Spese annue Spese annue
€ 10
Proponi il tuo prezzoProponi il tuo prezzo

Classe Energetica

G
G
G
G
G
G
G
G
G
Anno di costruzione:
1967
Riscaldamento:
Assente

Ti interessa visionare l'immobile?

Fissa un appuntamento  Fissa un appuntamento

Richiedi informazioni

Clicca su Leggi per aprire l'informativa
* Questi campi sono obbligatori

Calcola il tuo mutuo

Semplice e senza impegno
Anticipo

( % )
Mutuo

( % )

pochi semplici passi

inserisci i tuoi dati
Questionario completato
Grazie per aver richiesto un appuntamento senza impegno con un nostro Consulente del Credito e Assicurativo.

Hai inserito correttamente tutti i dati necessari e a breve riceverai una e-mail con un link da convalidare per inviare i tuoi dati.
Affiliato
Vietri Immobiliare Srl
Corso Umberto I, 37 84019 Vietri Sul Mare (SA)

Il nostro staff


  • Irene Avallone
    Coordinatrice

  • Luca Peruzzini
    Affiliato

  • Giovanni Apicella
    Collaboratore

  • Andrea Avallone
    Collaboratore

  • Gianluca Adinolfi
    Responsabile
Corso Umberto I, 37 84019 Vietri Sul Mare (SA)
Zona: Vietri Sul Mare-Cetara-Maiori
Mostra su mappa
Orari: dal lunedì a sabato 9:00-13:00/16:00-20:30; Aperti anche la domenica mattina.
Affiliato
Vietri Immobiliare Srl
Corso Umberto I, 37 84019 Vietri Sul Mare (SA)

2026 Tecnocasa Franchising S.p.A. - P. IVA 08365160152 - Via Monte Bianco 60/A 20089 Rozzano (MI). Ogni agenzia ha un proprio titolare ed è autonoma. Privacy policy | Policy utilizzo | Cookie policy