 
			 
				RAITO - Nel cuore del borgo marinaro, caratteristica abitazione con cortile privato.
Nel suggestivo borgo di Raito, frazione panoramica di Vietri sul Mare, immersa nella quiete e nei colori della Costiera Amalfitana, proponiamo in vendita una caratteristica soluzione abitativa, ideale per chi desidera autenticità, relax e fascino mediterraneo.
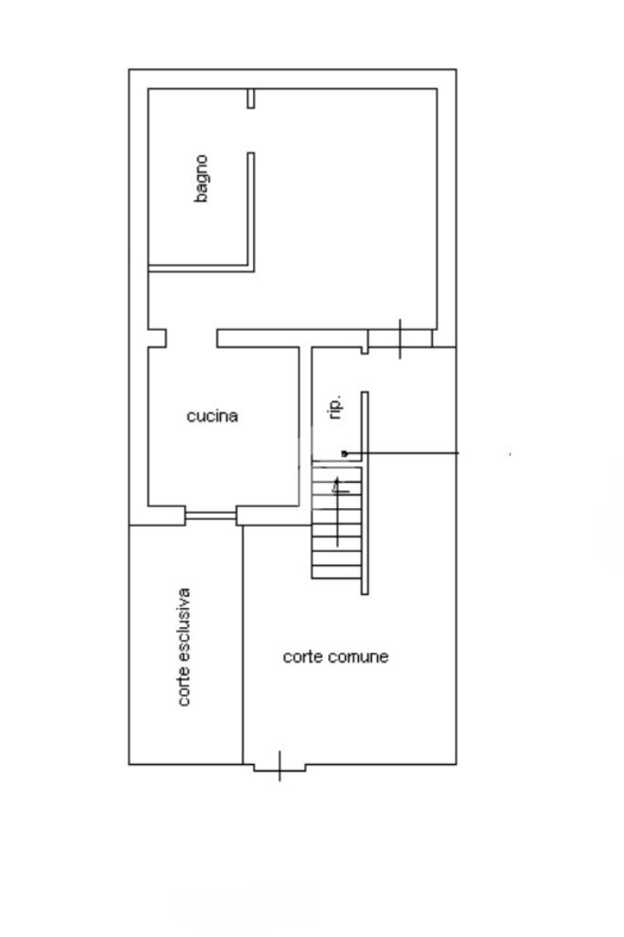
L'immobile si presenta in buone condizioni e si sviluppa su un unico livello, con ambienti curati e ben distribuiti. La proprietà è così composta:
Cucina abitabile, con finestra che si affaccia su un delizioso corte privato, perfetto per momenti di relax all'aperto,
Bagno completo con doccia, funzionale e ben rifinito;
Ampia camera da letto matrimoniale, valorizzata da soffitti a volta che donano charme e carattere;
Comodo deposito, ideale per il ricovero di oggetti della casa, attrezzature stagionali o per organizzare spazi di servizio in maniera ordinata e discreta.
L'abitazione conserva gli elementi architettonici tipici della tradizione locale, con ambienti freschi, luminosi e un'atmosfera autentica. Posizione tranquilla, a pochi minuti dai principali servizi, dai collegamenti e dalle spiagge.
Una soluzione perfetta come casa vacanze, residenza secondaria o investimento turistico, nel cuore di uno dei borghi più suggestivi della Costiera.
Ti interessa visionare l'immobile?