Trilocale in vendita

Vietri Sul Mare, Via chellavanna - Molina
€ 165.000
3 locali 3 locali
50 Mq 50 Mq
2 bagni 2 bagni

Trilocale in vendita

Vietri Sul Mare, Via chellavanna - Molina

Descrizione annuncio

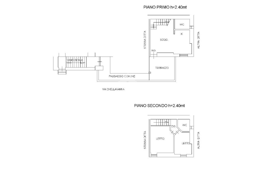
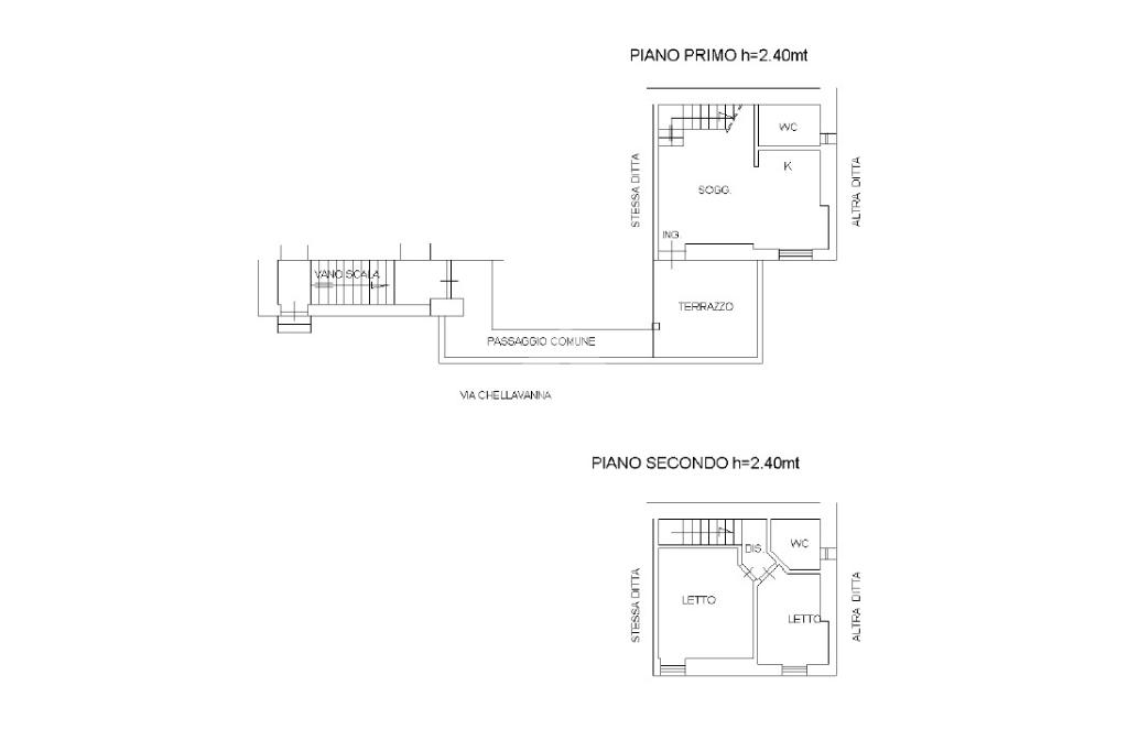
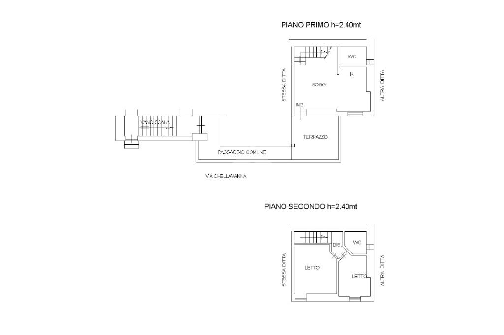
MOLINA di Vietri sul Mare - Grazioso appartamento su due livelli, comodo e accoglienteNel caratteristico borgo di Molina di Vietri sul Mare, porta d'ingresso della splendida Costiera Amalfitana, proponiamo in vendita un grazioso appartamento disposto su due livelli, facilmente raggiungibile in auto con possibilità di arrivare comodamente fin sotto soluzione, in buono stato manutentivo, combina funzionalità e comfort, rendendola ideale sia come abitazione principale che come perfetta casa per le livello: ampio ambiente open space con cucina e soggiorno, luminoso e ben distribuito, arricchito da un pratico TERRAZZINO che regala uno sfogo esterno perfetto per rilassarsi o consumare i pasti all'aperto. A completare il piano, un comodo servizio livello: zona notte composta da una camera matrimoniale accogliente, una cameretta funzionale adatta anche come studio o stanza ospiti, e un secondo servizio posizione centrale, a pochi passi dai principali servizi della frazione e a breve distanza da Vietri sul Mare e da Salerno, rende questa proprietà unica.

Mostra tutto

Nelle vicinanze

Trasporto pubblico Trasporto pubblico
Cava dei Tirreni
Cava dei Tirreni
2,5 Km
Trasporto pubblico
1,1 Km
Capolinea Viale Crispi
Capolinea Viale Crispi
2,3 Km
Trasporto pubblico
2,3 Km
Stazione Marittima - Molo Manfredi
2,9 Km
Ricariche auto elettriche Ricariche auto elettriche
Cava de' Tirreni Marconi | EnelX
2,9 Km
Scuole Scuole
Istituto d'Istruzione Superiore "Gaetano Filangieri"
1,8 Km
Istituto Comprensivo "Trezza"
2,2 Km
Scuole
2,2 Km
Scuola Media Statale "Giovanni XXIII"
2,2 Km
Liceo Classico Statale "Marco Galdi"
2,3 Km
Farmacia Farmacia
Farmacia
1,4 Km
Parafarmacia Dott.ssa Bisogno
2,1 Km
Farmacia Bifolco
2,5 Km
Farmacia del Corso
2,7 Km
Verdi
2,8 Km
Ospedali Ospedali
Presidio Ospedaliero Santa Maria dell'Olmo
1,5 Km
Supermercati Supermercati
Conad City
2,1 Km
Supermercati
2,2 Km
MD Discount
2,7 Km
Conad
2,8 Km
Negozi Negozi
Centro Alimentari Rocciola
1,4 Km
Pasticceria Sandra
1,5 Km
Negozi
1,5 Km
Il Vecchio Formo "Apicella"
1,5 Km
Crai spendimeglio
1,5 Km
Bar Bar
Bar
1,3 Km
Yourself
1,7 Km
Lab 11
1,9 Km
Alex Bar
1,9 Km
Fresconi - Lato B
1,9 Km
Ristoranti Ristoranti
Antico Mulino
520 m
La Foce 2
780 m
Ristorante Piccolo Paradiso
880 m
Ristorante La Fattoria
930 m
d'Essai
1,3 Km
Mostra tutto

Caratteristiche

Rif.:
61114602
Piano:
1 (Piano ammezzato)
Terrazzi:
1
Camere da letto:
2
Arredamento:
Assente
Condizionamento:
Assente
Mostra tutto
Prezzo Prezzo
€ 165.000
Rata mutuo Rata mutuo
€ 787 / mese
Spese annue Spese annue
€ 10
Proponi il tuo prezzoProponi il tuo prezzo

Classe Energetica

G
G
G
G
G
G
G
G
G
EP globale non rinnovabile:
175.00 kW h/m² anno
EP globale rinnovabile:
175.00 kW h/m² anno
Anno di costruzione:
1960
Riscaldamento:
Autonomo
Tipo impianto:
A radiatori
Tipo alimentazione:
Metano

Ti interessa visionare l'immobile?

Fissa un appuntamento  Fissa un appuntamento

Richiedi informazioni

Clicca su Leggi per aprire l'informativa
* Questi campi sono obbligatori

Calcola il tuo mutuo

Semplice e senza impegno
Anticipo

( % )
Mutuo

( % )

pochi semplici passi

inserisci i tuoi dati
Questionario completato
Grazie per aver richiesto un appuntamento senza impegno con un nostro Consulente del Credito e Assicurativo.

Hai inserito correttamente tutti i dati necessari e a breve riceverai una e-mail con un link da convalidare per inviare i tuoi dati.
Affiliato
Vietri Immobiliare Srl
Corso Umberto I, 37 84019 Vietri Sul Mare (SA)

Il nostro staff


  • Irene Avallone
    Coordinatrice

  • Luca Peruzzini
    Affiliato

  • Giovanni Apicella
    Collaboratore

  • Andrea Avallone
    Collaboratore

  • Gianluca Adinolfi
    Responsabile
Corso Umberto I, 37 84019 Vietri Sul Mare (SA)
Zona: Vietri Sul Mare-Cetara-Maiori
Mostra su mappa
Orari: dal lunedì a sabato 9:00-13:00/16:00-20:30; Aperti anche la domenica mattina.
Affiliato
Vietri Immobiliare Srl
Corso Umberto I, 37 84019 Vietri Sul Mare (SA)

2026 Tecnocasa Franchising S.p.A. - P. IVA 08365160152 - Via Monte Bianco 60/A 20089 Rozzano (MI). Ogni agenzia ha un proprio titolare ed è autonoma. Privacy policy | Policy utilizzo | Cookie policy