Quadrilocale in vendita

Vietri Sul Mare, Vallone primo - Dragonea
€ 265.000
4 locali 4 locali
101 Mq 101 Mq
2 bagni 2 bagni

Quadrilocale in vendita

Vietri Sul Mare, Vallone primo - Dragonea

Descrizione annuncio

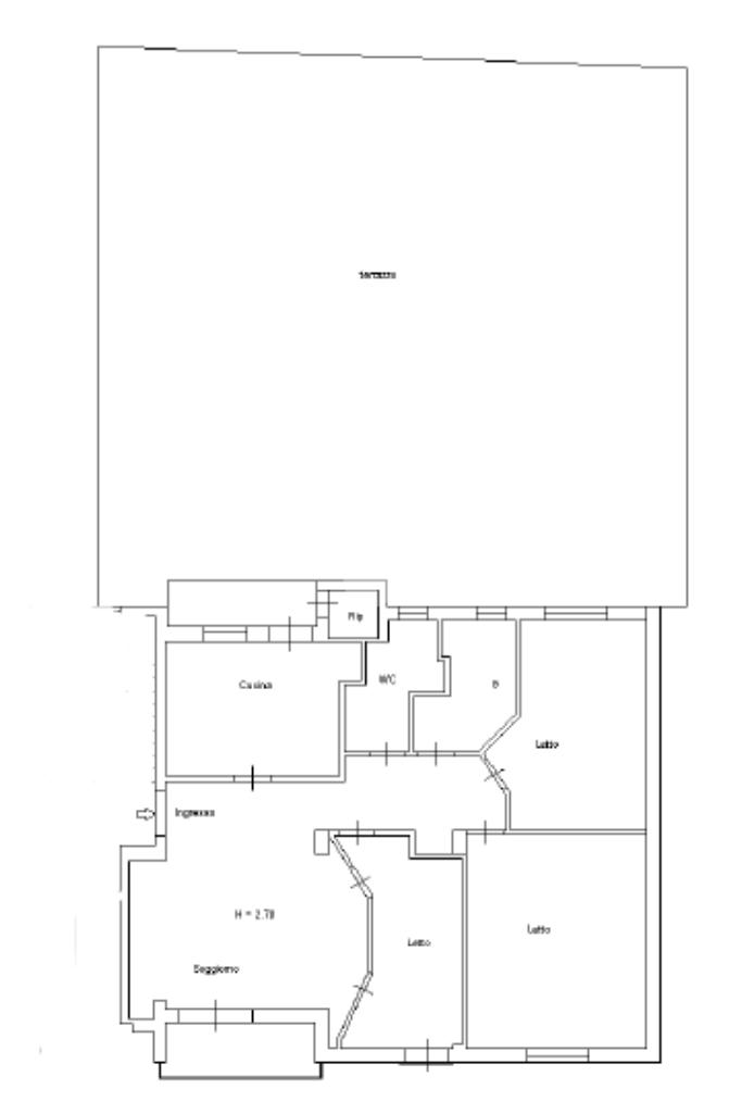
Dragonea - Proponiamo in vendita un ampio e luminoso appartamento, situato al primo piano di un edificio in una zona residenziale tranquilla e ben collegata. L'immobile si trova all'interno di un parco chiuso, con giardini condominiali e in fase di lavori di riqualificazione, che contribuiranno a rendere l'intero contesto ancora più piacevole e moderno. La soluzione è ideale per chi cerca un'abitazione spaziosa e funzionale in un contesto verde e sicuro.

Caratteristiche dell'immobile:

Soggiorno: Ampio e luminoso soggiorno dotato di camino, perfetto per creare un angolo accogliente nelle fredde serate invernali. La stanza è arricchita da un balcone che offre un affaccio panoramico sul parco condominiale, rendendo l'ambiente ancora più arioso e luminoso.

Cucina Abitabile: La cucina è separata dal soggiorno e dispone di un comodo accesso a un ampio terrazzo privato. Lo spazio esterno, perfetto per cene all’aperto o momenti di relax, è un vero e proprio punto di forza dell’immobile.

Zona Notte: L’appartamento è composto da tre camere da letto spaziose, ideali per famiglie o per chi necessita di ambienti ampi e ben distribuiti. Ogni stanza offre molta luce naturale e può essere personalizzata in base alle proprie esigenze.

Due Bagni Completi: Due comodi bagni offrono funzionalità e praticità, perfetti per l’uso quotidiano.

Ripostiglio: Un pratico ripostiglio che offre ulteriore spazio per riporre oggetti e accessori, mantenendo gli ambienti ordinati e funzionali.

Box Auto Privato e Posto Auto: La proprietà include un box auto privato al piano interrato, offrendo sicurezza e comodità. Inoltre, è presente un posto auto esterno .

Questa soluzione rappresenta la scelta ideale per chi cerca un'abitazione spaziosa e comoda in un contesto residenziale, senza rinunciare alla tranquillità e alla sicurezza. Grazie alla sua generosa metratura, la disposizione degli spazi e la presenza di un ampio terrazzo, l’appartamento si presta perfettamente per essere la prima casa di una famiglia, ma anche per chi cerca una casa funzionale e accogliente in una zona verde.

Mostra tutto

Nelle vicinanze

Trasporto pubblico Trasporto pubblico
Trasporto pubblico
140 m
Trasporto pubblico
1,1 Km
Stazione Marittima - Molo Manfredi
2,0 Km
Vietri sul Mare - Amalfi
Vietri sul Mare - Amalfi
320 m
Farmacia Farmacia
Farmacia
90 m
Verdi
2,2 Km
Aiello
2,8 Km
Farmacia del leone
3,0 Km
Ospedali Ospedali
Presidio Ospedaliero Santa Maria dell'Olmo
3,0 Km
Supermercati Supermercati
Pam
2,9 Km
Conad City
2,9 Km
Negozi Negozi
Negozi
30 m
Il Vecchio Formo "Apicella"
40 m
Alimentari da Imma
60 m
Pasticceria Sandra
80 m
Polleria Nello
80 m
Bar Bar
Bar
220 m
Zerottonove
2,5 Km
Embarcadero
2,7 Km
Pub Oro Eincenso E Birra
2,8 Km
Le Café
2,8 Km
Ristoranti Ristoranti
da Nando
10 m
Bordo
20 m
Evù
40 m
il Principe e la Civetta
50 m
Risto Arte
70 m
Mostra tutto

Caratteristiche

Rif.:
61111157
Piano:
1 di 3 (Piano medio)
Box:
1
Posti auto:
1
Balconi:
2
Terrazzi:
1
Mostra tutto
Prezzo Prezzo
€ 265.000
Rata mutuo Rata mutuo
€ 1.249 / mese
Spese annue Spese annue
€ 360
Proponi il tuo prezzoProponi il tuo prezzo

Classe Energetica

F
F
F
F
F
F
F
F
F
EP globale non rinnovabile:
158.32 kW h/m² anno
EP invernale del fabbricato:
EP estiva del fabbricato:
Anno di costruzione:
1979
Riscaldamento:
Autonomo
Tipo impianto:
A radiatori
Tipo alimentazione:
Metano

Ti interessa visionare l'immobile?

Fissa un appuntamento  Fissa un appuntamento

Richiedi informazioni

Clicca su Leggi per aprire l'informativa
* Questi campi sono obbligatori

Calcola il tuo mutuo

Semplice e senza impegno
Anticipo

( % )
Mutuo

( % )

pochi semplici passi

inserisci i tuoi dati
Questionario completato
Grazie per aver richiesto un appuntamento senza impegno con un nostro Consulente del Credito e Assicurativo.

Hai inserito correttamente tutti i dati necessari e a breve riceverai una e-mail con un link da convalidare per inviare i tuoi dati.
Affiliato
Vietri Immobiliare Srl
Corso Umberto I, 37 84019 Vietri Sul Mare (SA)

Il nostro staff


  • Irene Avallone
    Coordinatrice

  • Luca Peruzzini
    Affiliato

  • Giovanni Apicella
    Collaboratore

  • Andrea Avallone
    Collaboratore

  • Gianluca Adinolfi
    Responsabile
Corso Umberto I, 37 84019 Vietri Sul Mare (SA)
Zona: Vietri Sul Mare-Cetara-Maiori
Mostra su mappa
Orari: dal lunedì a sabato 9:00-13:00/16:00-20:30; Aperti anche la domenica mattina.
Affiliato
Vietri Immobiliare Srl
Corso Umberto I, 37 84019 Vietri Sul Mare (SA)

2026 Tecnocasa Franchising S.p.A. - P. IVA 08365160152 - Via Monte Bianco 60/A 20089 Rozzano (MI). Ogni agenzia ha un proprio titolare ed è autonoma. Privacy policy | Policy utilizzo | Cookie policy