 
			 
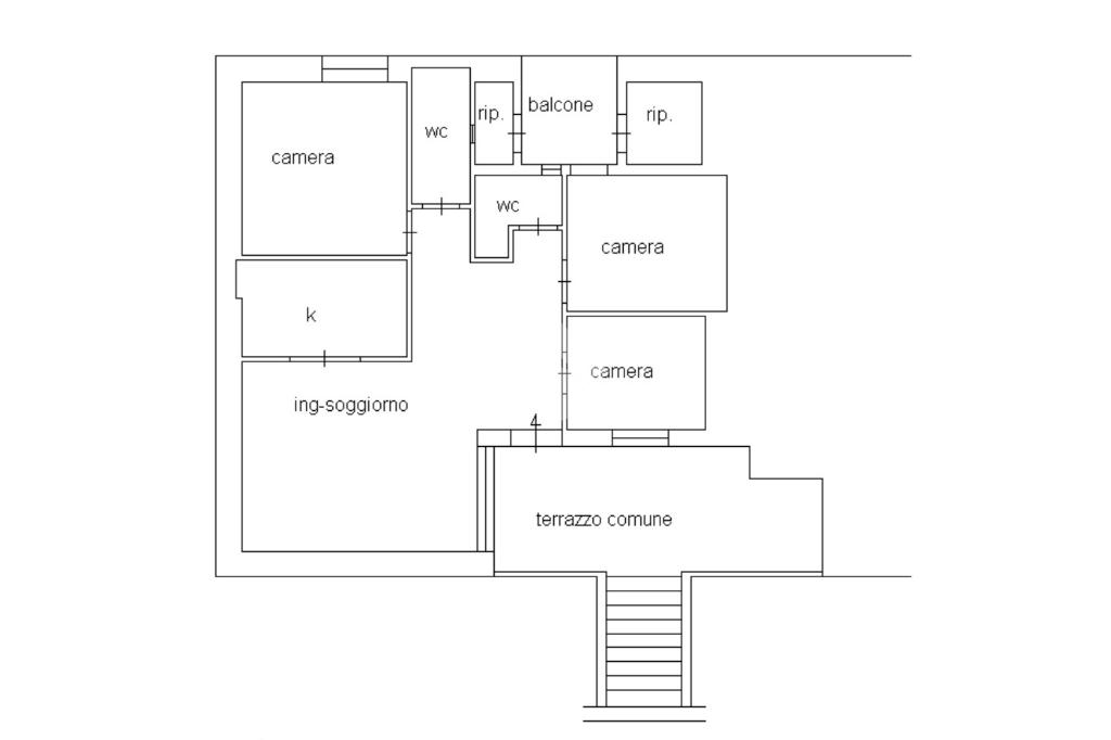
				Vietri - Si propone in vendita ampio appartamento sul corso principale del paese , che e' stato ristrutturato di recente con materiali di alta qualita' . La soluzione e' particolarmente spaziosa e ben organizzata , perfetta per famiglie o chi cerca ampi spazi immobile e' cosi composto :
- terrazzo in comune: un ampio spazio esterno , ideale per momenti di relax ,
- soggiorno : ambiente accogliente e luminoso ,perfetto per il tempo libero o per accogliere gli ospiti,
- angolo cottura: una cucina a vista che si integra armoniosamente con il soggiorno , ottimizzando gli spazi senza rinunciare alla funzionalita' ,
- disimpegno: zona di passaggio che collega le varie stanze , dando ordine e separazione agli ambienti,
- doppi servizi: due bagni , uno dei quali e' dotato di una pratica doccia , ideali per garantire comfort e praticita' , soprattutto in una famiglia numerosa o per ospiti,
- camera matrimoniale: spaziosa e luminosa , perfetta per il relax , con ampi spazi per mobili e armadi,
- due camerette:perfette per bambini , ospiti o come studio ,
- terrazzino: spazio esterno privato che si affaccia direttamente sul corso , offrendo una vista panoramica e la possibilita' di godere di un po' di aria fresca .
L' appartamento e' completamente ristrutturato , e offre un livello di comfort elevato grazie alla presenza di numerosi dettagli e finiture di dotato di termosifoni , condizionatori caldo/freddo per garantire la massima comodita' in ogni le stanze sono rivestite con un elegante parquet in legno , conferendo un'atmosfera calda e accogliente a tutto l'appartamento . E' dotato di una porta blindata all'ingresso ,e le porte interne sono realizzate in legno massello di alta qualita' , un materiale resistente e pregiato che dona una sensazione di solidita' e classe , e gli infissi sono in legno combinato con l'alluminio .
Ti interessa visionare l'immobile?