 
			 
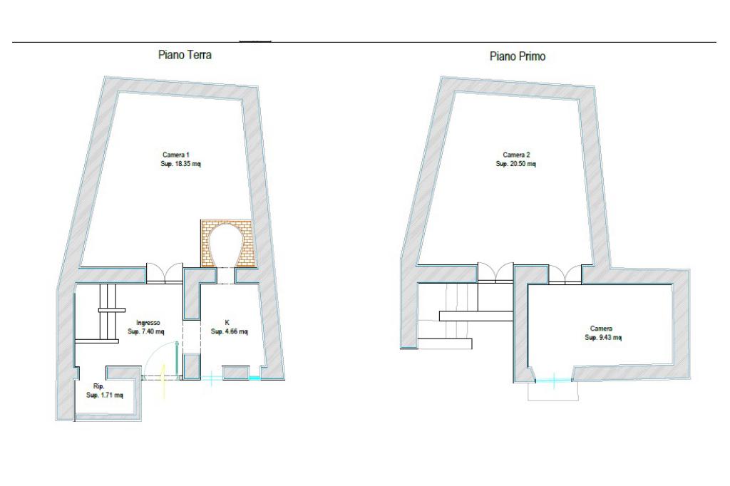
				MOLINA - Sorge in una vallata alle pendici dei monti lattari,lungo il torrente Bonea. Il suo nome deriva dai mulini ad acqua, costruiti in epoca sua tranquillità e le forti aree di parcheggio rendono questa frazione una delle più comode del paese. In uno dei vicoletti più storici del paese proponiamo appartamento di comodo accesso da ristrutturare composto da ingresso , ampia camera da letto , cucina con balcone, bagno e locale deposito . La soluzione può essere adattata come semplice casa per le vacanze o investimento.
Ti interessa visionare l'immobile?