Quadrilocale in vendita

Maiori, Via Parrocchiale - Erchie
€ 220.000
4 locali 4 locali
70 Mq 70 Mq
1 bagno 1 bagno

Quadrilocale in vendita

Maiori, Via Parrocchiale - Erchie

Descrizione annuncio

Nel cuore del pittoresco borgo di Erchie, una delle perle più autentiche della Costiera Amalfitana, proponiamo in vendita una casa che racconta il mare, la luce e la quiete.

L’abitazione accoglie con un ampio salone d’ingresso, ambiente luminoso e conviviale che introduce a una cucina funzionale e ben organizzata, ideale per chi ama vivere la casa come luogo d’incontro e di condivisione.
Il bagno con doccia, curato nei dettagli, unisce comfort e praticità.

Un ambiente particolarmente suggestivo è la seconda camera molto alta di soffitto, dove è stato realizzato un soppalco elegante e comodo: al piano superiore si trova la zona notte, mentre la parte inferiore, attualmente utilizzata come soggiorno aggiuntivo, può essere facilmente adattata a camera per gli ospiti, studio o area relax.
La disposizione degli spazi consente massima libertà di interpretazione, rendendo l’immobile perfetto sia come residenza principale che come casa vacanze.

Erchie (SA) — celebre per le spiagge di sabbia dorata, l’acqua cristallina e le scogliere panoramiche, è un luogo dove il tempo sembra rallentare e la vita ritrova il suo ritmo naturale. Le vie del borgo, le piccole piazze e il profumo del mare creano un’atmosfera unica, ideale per chi cerca autenticità e serenità senza rinunciare alla bellezza del paesaggio costiero.

Una casa che invita a vivere la Costiera, non solo a guardarla.

Mostra tutto

Nelle vicinanze

Trasporto pubblico Trasporto pubblico
Trasporto pubblico
590 m
Minori
2,8 Km
Ricariche auto elettriche Ricariche auto elettriche
Municipio di Tramonti | EnelX
2,7 Km
Scuole Scuole
Istituto Comprensivo G. Pascoli
2,6 Km
Farmacia Farmacia
Farmacia
2,3 Km
Supermercati Supermercati
Netto
2,0 Km
Deco
2,4 Km
Negozi Negozi
Negozi
2,2 Km
Original Marines
2,3 Km
Il Pastaio
2,6 Km
Bar Bar
Bar
2,4 Km
Pasticceria De Riso (pastry store)
2,6 Km
Bar Treviso
2,7 Km
Ristoranti Ristoranti
Masaniello
2,2 Km
Totò & Peppino
2,2 Km
La tana del luppolo
2,3 Km
Ristoranti
2,3 Km
Tony's
2,4 Km
Mostra tutto

Caratteristiche

Rif.:
61124351
Piano:
Medio di 2
Totale piani:
2
Camere da letto:
2
Arredamento:
Assente
Condizionamento:
Autonomo
Mostra tutto
Prezzo Prezzo
€ 220.000
Rata mutuo Rata mutuo
€ 1.038 / mese
Spese annue Spese annue
€ 0
Proponi il tuo prezzoProponi il tuo prezzo

Altre caratteristiche

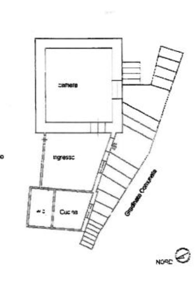
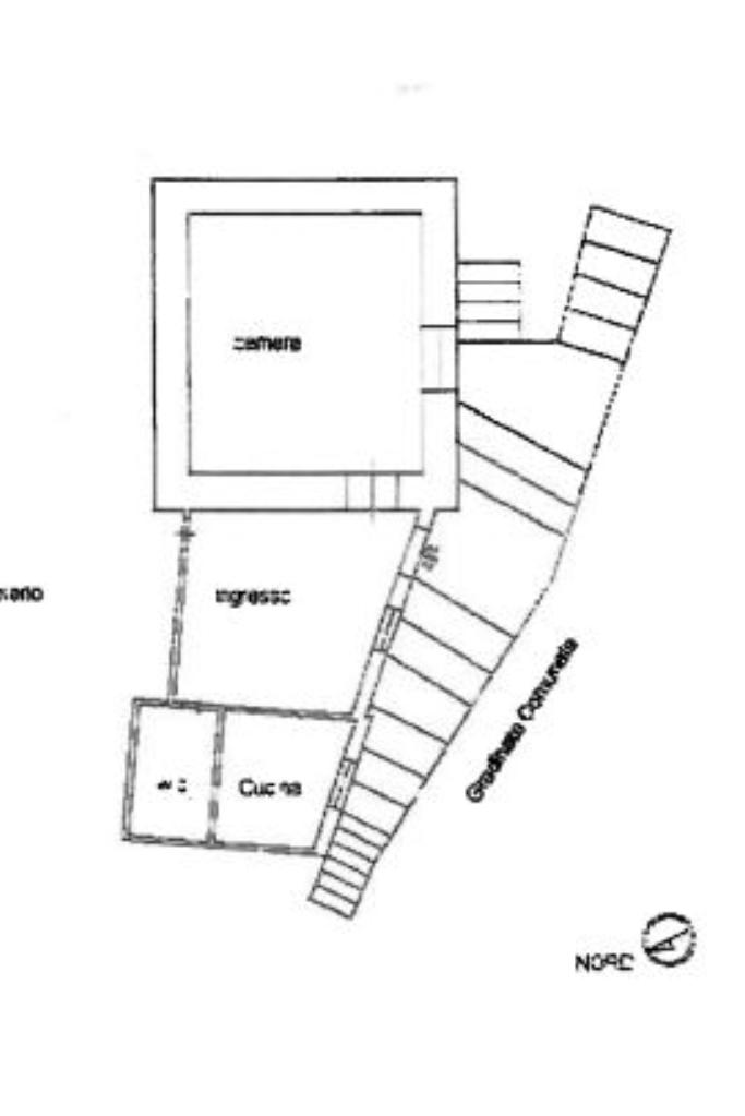
Descrizione dei locali
Cucina Abitabile

Classe Energetica

G
G
G
G
G
G
G
G
G
EP globale non rinnovabile:
175.00 kW h/m² anno
EP globale rinnovabile:
175.00 kW h/m² anno
EP invernale del fabbricato:
EP estiva del fabbricato:
Anno di costruzione:
1967
Riscaldamento:
Assente

Ti interessa visionare l'immobile?

Fissa un appuntamento  Fissa un appuntamento

Richiedi informazioni

Clicca su Leggi per aprire l'informativa
* Questi campi sono obbligatori

Calcola il tuo mutuo

Semplice e senza impegno
Anticipo

( % )
Mutuo

( % )

pochi semplici passi

inserisci i tuoi dati
Questionario completato
Grazie per aver richiesto un appuntamento senza impegno con un nostro Consulente del Credito e Assicurativo.

Hai inserito correttamente tutti i dati necessari e a breve riceverai una e-mail con un link da convalidare per inviare i tuoi dati.
Affiliato
Vietri Immobiliare Srl
Corso Umberto I, 37 84019 Vietri Sul Mare (SA)

Il nostro staff


  • Irene Avallone
    Coordinatrice

  • Luca Peruzzini
    Affiliato

  • Giovanni Apicella
    Collaboratore

  • Andrea Avallone
    Collaboratore

  • Gianluca Adinolfi
    Responsabile
Corso Umberto I, 37 84019 Vietri Sul Mare (SA)
Zona: Vietri Sul Mare-Cetara-Maiori
Mostra su mappa
Orari: dal lunedì a sabato 9:00-13:00/16:00-20:30; Aperti anche la domenica mattina.
Affiliato
Vietri Immobiliare Srl
Corso Umberto I, 37 84019 Vietri Sul Mare (SA)

2025 Tecnocasa Franchising S.p.A. - P. IVA 08365160152 - Via Monte Bianco 60/A 20089 Rozzano (MI). Ogni agenzia ha un proprio titolare ed è autonoma. Privacy policy | Policy utilizzo | Cookie policy